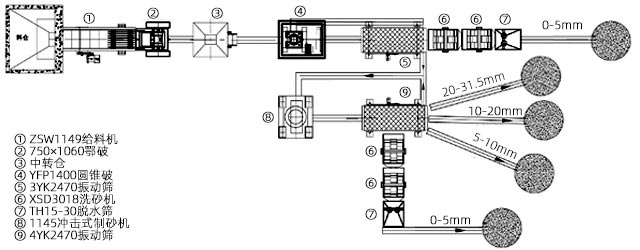
180-250t/h河卵石制砂工藝流程圖
典型“鄂破+圓錐破+制砂機”三段制砂工藝,通過兩道工序篩分,配以洗砂設備實現水洗機制砂,以提高成品砂潔凈程度。
制砂產量:100-1000t/h(制砂設備臺時產量)
制砂工藝:干式制砂、濕法制砂、干濕法制砂結合方案及集成式制砂樓、選粉樓等工藝。
推薦設備:顎破機、旋回破、反擊破、圓錐破、沖擊式制砂機、制砂樓、選粉樓等。

典型“鄂破+圓錐破+制砂機”三段制砂工藝,通過兩道工序篩分,配以洗砂設備實現水洗機制砂,以提高成品砂潔凈程度。

該方案特點是二破采用細碎鄂破,相比圓錐破可以減少投資成本,制砂設備采用可逆式制砂機,維護保養方便,還可智能化操控。
河卵石硬度頗高(7左右),是較好的機制砂原料,建議采用性好的臥式旋回破、鄂破、圓錐破、反擊破及沖擊式制砂機設備對其加工處理,可減少運維成本。
| 設備圖片 | DLHGC臥式旋回破碎機 | DLEV鄂式破碎機 | 圓錐式破碎機 | DLHCS反擊破碎機 | DLVSI沖擊式制砂機 |
| 適用階段 | 粗碎 | 粗碎 | 二級中細碎 | 二級中細碎 | 制砂 |
| 臺時產量 | 100~3500t/h | 150~1500t/h | 45-2181t/h | 250-750t/h | 250-800t/h |
| 進料粒度 | ≤1200mm | ≤1200mm | ≤450mm | ≤250mm | ≤60mm |
| 優點 | 非立軸設計、進料高度低、出料200mm以下可控 | V型深腔破碎、無死區、自動潤滑、彈性限位減震裝置 | 滑動軸承、液壓潤滑、層壓破碎、自動調整排料口 | 破碎比大、液壓開蓋、維護方便、自動加油 | 深腔設計、風冷和加熱系統、稀油潤滑、PCL智能系統 |
下述配置清單僅供參考,實際配置要依據河卵石的硬度、濕度、含泥量等具體情況以及場地、投資預算等因素進行調整。
| 可選方案 | 鄂破+反擊破+沖擊破 | 鄂破+圓錐破+沖擊破 | 旋回破+反擊破+沖擊破 | 旋回破+圓錐破+沖擊破 |
|---|---|---|---|---|
| 投資建議 | 可考慮 | 建議 | 可考慮 | 可考慮 |
| 優劣勢 | 優勢:成品粒形好 劣勢:易損件磨損快,成本高; | 優勢:對河卵石破碎效果好、破碎效率高; 劣勢:初期投資高、設備維護復雜; | 優勢:可破大塊河卵石,成品粒形好; 劣勢:反擊破易損件磨損快; | 優勢:破碎能力強,破碎效果好; 劣勢:設備成本高、對安裝空間和基礎要求高(臥式旋回除外); |
| 承建范圍 | 100~1500t/h(主破單機) | 100~1500t/h(主破單機) | 500-3200t/h(主破單機) | 500-3200t/h(主破單機) |
| 主破進料 | ≤1000mm | ≤1000mm | ≤1200mm | ≤1200mm |
| 配置方案 | ①100-200t/h:PE500×750鄂破+PF-1210反擊破+VSI-8518沖擊破 ②200-300th/:PE600×750鄂破+PF-1315反擊破+VSI-9526沖擊破 ③300-500t/h:PE750×1060鄂破+PF-1520反擊破+VSI-1140沖擊破 | ①200-300t/h:PE600×750鄂破+HPM200圓錐破+VSI-9526沖擊破 ②300-500t/h:PE750×1060鄂破+HPM300圓錐破+VSI-1140沖擊破 ③500-800t/h:PE900×1200鄂破+HPM400圓錐破+VSI-1263沖擊破 | ①500-800t/h:HGT120旋回破+CI1520反擊破+VSI-1140沖擊破; ②800-1200t/h:HGT140旋回破+CI1820反擊破+VSI-1263沖擊破; | ①年產1千萬噸:DLHGC480臥式旋回破碎機+DLHCS1523反擊式破碎機+沖擊式破碎機; ②500-800噸/時:PXZ1217旋回破+PYB-1750圓錐破+VSI-1263沖擊破 |
河南衛輝遠大新材年產1000萬噸石灰巖、河卵石濕法制砂生產線項目,投資2.1億元,占地1720畝,預計年產值7億元,屬快速建廠模式承建,建設工期58天!

加工物料:河卵石、石灰巖
設備配置:DLBW重型板式給料機、DLHGC臥式旋回破碎機、DLHCS反擊破碎機、DLVSI沖擊式制砂機、DLYKZ振動篩、DLLXS螺旋洗砂機、DLTS脫水篩、組合式篩分樓、組裝式廊道等多種礦山設備及整套礦山智能化管理系統。
成品料規格:機制砂、水洗砂、5~10mm骨料、10~20mm骨料




中譽鼎力作為砂石骨料生產線解決方案提供商,先后服務5000+客戶,擁有100+EPCO項目的實戰運營經驗。

河南中譽鼎力礦山工程設計研究院設計方案,具有二級及以上建造師、電氣工程師、二級及以上結構工程師等技術力量、經驗豐富的各類設計人員。

非承包性施工團隊,鼎力旗下希冕建設工程有限公司一站式工程承包和安裝服務,高質量,低成本的材料和加工,規定的時間內保質保量完成建設任務。

國內22個服務,定期跟蹤服務,可實現快速現場解決問題或遠程協助,就近服務配發礦山設備配件,更短時間內滿足客戶的更換需求。
【液壓圓錐破操作使用中的11個誤區,要避開!】在實際的生產操作過程中,液壓圓錐破如果操作不當往往會引起許多疑問,引起設備破損,甚至是人員傷亡,給廠家客戶提供
花崗石因其硬度較大、損,在加工成型方面也引起了需的難度,所以針對花崗石的粉碎,通常選擇花崗石加工設備或許花崗石粉碎生產線做出加工解決,加工粉碎花崗石的機械
【單缸圓錐式破石機結構組成及特點】如今家大力宣傳環保工作,使得漸漸增多礦山設備生產廠推出省電減排的單缸圓錐式破石機設備,憑借著重量輕盈、粉碎效能高、成品率大、
【破石機油液選用_更換方法】隨著破石機不斷提升發展,產品的性能也在不斷,更大程度滿足了用戶的要求,也在程度地了礦業的整體工藝,目前破石機在大型礦業加
【圓錐破配件維護很重要,提高設備壽命!】大家在買礦山機器以后,都是期望要讓圓錐破的使用期限有的。但是不管是何種選礦山機器械,在平常操作過程中,若
【石料廠用破石機類型_破碎生產線_報價】根據破石機的工作原理、工藝特性和機器的結構特征,目前在工業上廣泛使用的破石機可分為電能破石機、顎式破石機、反擊破石機、輥
您可填寫您的需求,或通過在線咨詢,電子郵件,電話(同微信)與我們聯系,我們的工程師將為您提供相關服務。